PRODEJ BYTU 4+kk SE 2 BALKONY A GAR. STÁNÍM
Berlínská, Praha 10 - Hostivař
| Evidenční číslo | 2002 |
| Vlastnictví | osobní |
| Dispozice | 4+kk/2B/GS |
| Příslušenství | komora, sklep, parkovací stání vnitřní |
| Užitná plocha | 102 m2 |
| Typ budovy | cihlová |
| Podlaží | 4. z 6 |
| Celkový stav jednotky | novostavba |
| Celkový stav budovy | novostavba |
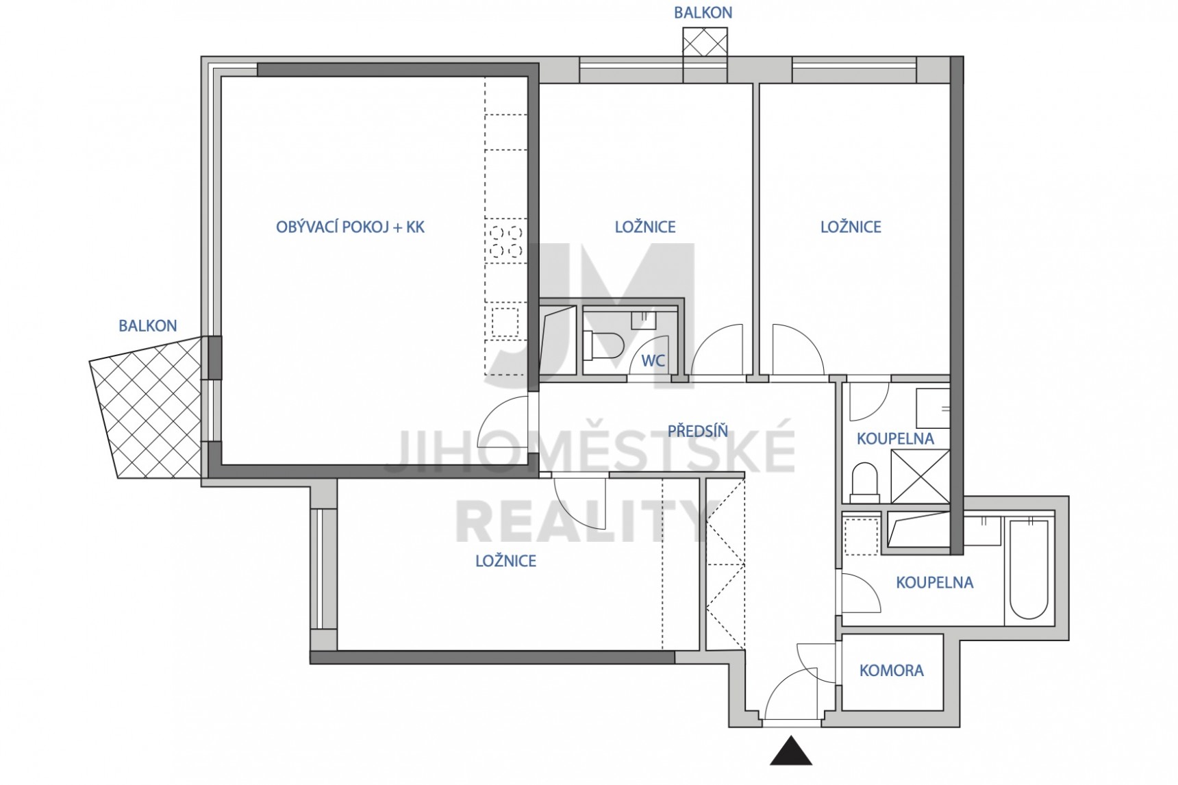
Prodej bytu 4+kk se 2 balkony, užitná plocha bytu 102 m2, v osobním vlastnictví (lze financovat hypotečním úvěrem). Nachází se ve 4. nadpodlaží ze 6.
Byt je součástí developerského projektu Slunečný vršek a prošel nákladnou rekonstrukcí. Kuchyňská linka s kamennou pracovní deskou Technistone vč. zabudovaného grilu zn. Siemens a vestavěnými spotřebiči rovněž zn. Siemens (indukční varná deska, parní trouba, horkovzdušná trouba, mikrovlnná trouba, myčka), vestavěná lednice s mrazákem zn. Liebherr. V obývacím pokoji a v kuchyni jsou na stěnách benátské štuky. V bytě jsou kompletně nové rozvody (elektro, voda, kanalizace) a klimatizační a datové rozvody ve všech místnostech, vč. alarmu. V celém bytě je doplňkové podlahové vytápění s možností řízení přes mobilní telefon, v každé místnosti je dále termostat. Komfort poskytují dvě koupelny (jedna koupelna vč. wc má vstup z ložnice a druhá koupelna a samostatné wc mají vstup z předsíně). Obě koupelny jsou rovněž po celkové rekonstrukci vč. nových zařizovacích předmětů. V bytě je dlažba a vinylová podlaha, bezfalcové dveře na míru a nové bezpečností vstupní dveře. V ložnici a v předsíni jsou vestavěné skříně. Úložný prostor poskytuje prostorná komora v bytě a sklep v domě. K bytu dále náleží vnitřní parkovací stání vč. el. zásuvky pro nabíjení elektromobilu.
Dům je novostavba s bezbariérovým vchodem, umístěná v klidné zástavbě plné zeleně, v blízkosti Hostivařské přehrady. V areálu je k dispozici mini golfové hřiště, hřiště na basketbal, volejbal, tenisová zeď, horolezecká stěna, u-rampa a hřiště na pétanque. Zástavbu protínají cyklistické stezky a trasy pro in-line bruslaře. V areálu je rovněž supermarket Albert a restaurace. Projekt získal řadu ocenění. Klasifikační třída energetické náročnosti G (PENB bude doložen a hodnota upřesněna).
607 00 11 88
info@jihomestskereality.czOdesláním tohoto formuláře souhlasíte s poskytnutím vyplněných údajů společnosti Jihoměstské reality s.r.o. jakožto zpracovateli k tomu, aby je elektronicky uchovala pro účely další vzájemné komunikace, a to na dobu nezbytně nutnou.
Majitel má právo prodat/pronajmout nemovitost nabídce, dle vlastního uvážení. Cena (kupní, nájemní) uvedená v inzerci RK je orientační a může být změněna/upravena dle vzájemného ujednání mezi prodávajícím a kupujícím, prostřednictvím RK. Všechny textové údaje v inzerci jsou orientační a mají pouze informační charakter, čímž nezavazují RK k uzavření jakýchkoliv smluv a nemají předsmluvní charakter. RK si vyhrazuje právo na vyjednávání s dalšími zájemci o koupi/nájem nemovitosti a to nejpozději do dne uzavření rezervační/nájemní smlouvy s konkrétním zájemcem.
Podobné nemovitosti
-
PRODEJ BYTU 3+kk/L
Prodej bytové jednotky 3+kk s lodžií, užitná plocha jednotky 64 m2, v OV. Nachází se v 9. podlaží z 12. Bytová jednotka je po částečné rekonstrukci.
Evidenční číslo: 1824PRODÁNO 6 950 000 KČ (8/2025) PRODEJ BYTU 3+kk/L -
PRODEJ BYTU 3+kk/T/GS
Prodej bytu 3+kk s terasou, užitná plocha 66 m2, v DV. Nachází se v 6. podlaží ze 7. Byt je novostavba. Náleží k němu vnitřní parkovací stání.
Evidenční číslo: 1998PRODÁNO (12/2021) PRODEJ BYTU 3+kk/T/GS -
PRODEJ BYTU 3+1/L
Prodej bytu 3+1 s lodžií (zaskleno), užitná plocha bytu 77 m2, v DV. Nachází se v 8. podlaží z 8. Byt je po částečné rekonstrukci.
Evidenční číslo: 1999PRODÁNO 6 000 000 KČ (12/2021) PRODEJ BYTU 3+1/L -
PRODEJ BYTU 3+1/L
Prodej bytu 3+1 s lodžií (zaskleno), užitná plocha bytu 76 m2, užitná plocha lodžie 6,2m2, v OV. Nachází se ve 2. podlaží z 6. Byt je po částečné rekonstrukci.
Evidenční číslo: 2011PRODÁNO 7 750 000 KČ (4/2022) PRODEJ BYTU 3+1/L
